Свяжитесь с нами - мы работаем ежедневно без выходных с 9:00 до 20:00
+375 33 911-44-99 или Получить консультацию
Проект Студенка
Цена проекта
1 599 BYN
по будням 8-21, суббота 9-17
План 1-го этажа
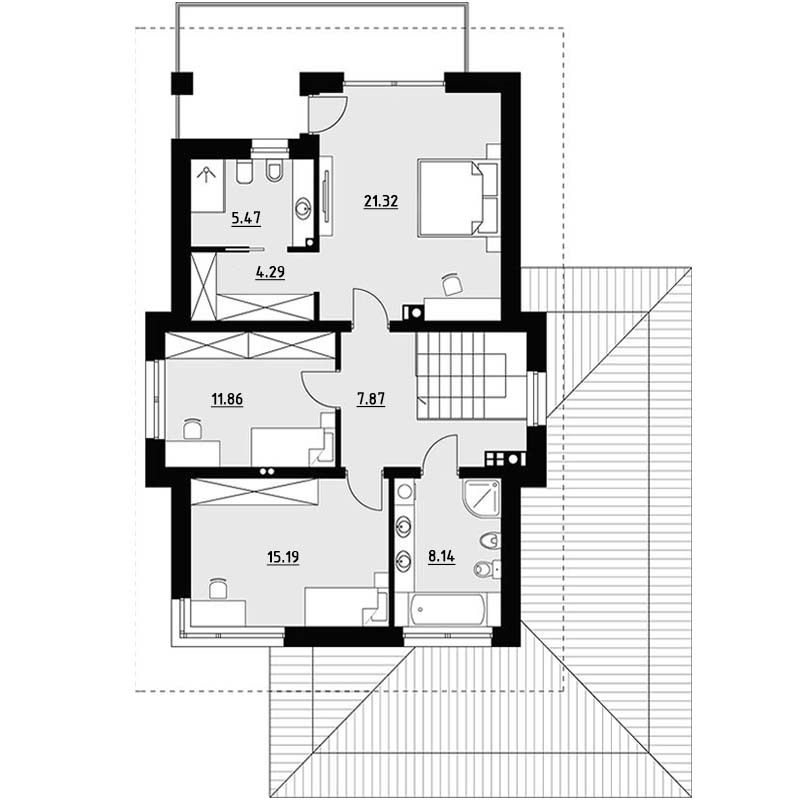
План 2-го этажа