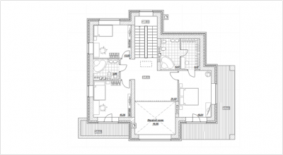
Готовый проект чертежей дома
Что такое готовый проект? Это документ, содержащий все необходимые чертежи и планы для строительства дома. Такие проекты разрабатываются опытными архитекторами и дизайнерами, учитывая современные тенденции и потребности будущих владельцев.
Преимущества готового проекта чертежей дома очевидны. Во-первых, это экономия времени. Вместо того чтобы начинать проектирование с нуля, вы можете выбрать готовый проект, который соответствует вашим предпочтениям и требованиям. Это позволяет сэкономить месяцы на разработке индивидуального проекта.
Во-вторых, готовый проект обеспечивает экономию финансов. Покупка готового проекта обходится значительно дешевле, чем заказ индивидуального проектирования у архитектора. Кроме того, вы сразу видите, как будет выглядеть ваш будущий дом, что позволяет избежать неприятных сюрпризов в процессе строительства.
Третье преимущество - гибкость выбора. Готовые проекты предлагают широкий выбор стилей, размеров и планировок. Вы можете найти проект, отвечающий вашим потребностям, будь то небольшой коттедж для семьи или просторный дом для большой компании.
Кроме того, готовый проект обеспечивает уверенность в результате. Вы видите, как будет выглядеть ваш будущий дом, что помогает избежать разочарований и ошибок в процессе строительства.
Наконец, готовый проект чертежей дома способствует быстрому началу строительства. После покупки проекта вы можете сразу приступить к подготовке к строительству, не тратя время на разработку чертежей и планов.
Если вы хотите построить свой идеальный дом без лишних затрат времени и финансов, готовый проект чертежей дома - отличное решение для вас. Обратитесь к специалистам в этой области, они помогут вам выбрать подходящий проект и осуществить мечту о собственном доме без лишних хлопот.






